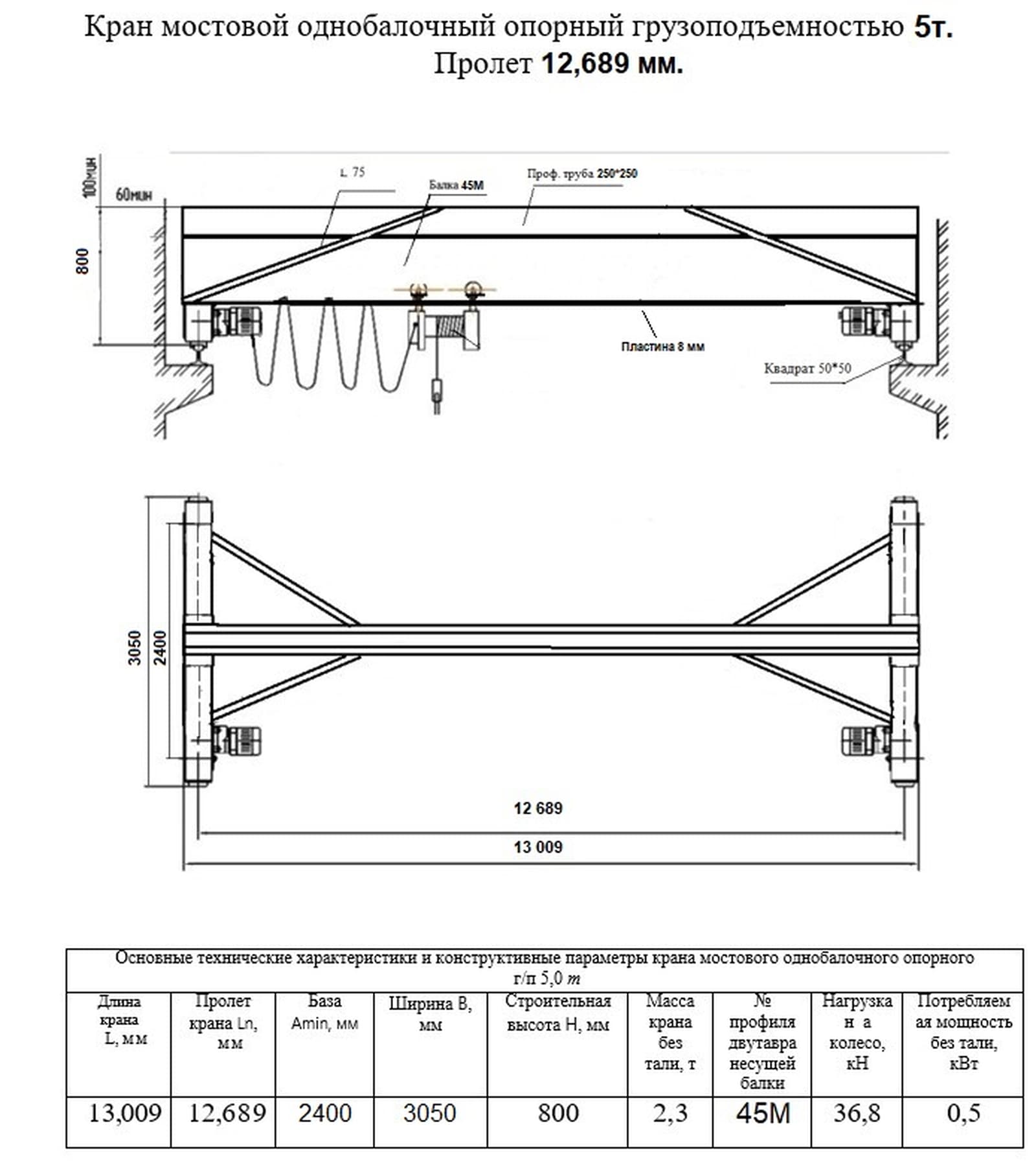
Основные элементы конструкции
Кран-балка состоит из нескольких ключевых компонентов:
- Пролетная балка - главный несущий элемент конструкции
- Концевые тележки - обеспечивают перемещение по подкрановым путям
- Грузоподъемный механизм - таль или тельфер
- Токоподвод - система подачи электроэнергии
- Система управления - пульты, контроллеры, датчики
Экспертная рекомендация: При изучении схемы кран-балки всегда начинайте с общего вида конструкции, затем переходите к отдельным узлам и только после этого анализируйте электрическую часть.
Типовые схемы кран-балок
| Тип кран-балки | Схема | Применение |
|---|---|---|
| Подвесная | Балка подвешена к потолочным конструкциям | Небольшие цеха, склады |
| Опорная | Балка опирается на подкрановые пути | Производственные помещения |
| Однобалочная | Одна несущая балка | Грузоподъемность до 10 тонн |
| Двухбалочная | Две параллельные балки | Грузоподъемность свыше 10 тонн |
Принцип работы
Работа кран-балки основана на следующих процессах:
- Перемещение по подкрановым путям с помощью концевых тележек
- Передвижение грузоподъемного механизма вдоль балки
- Подъем и опускание груза с помощью тали
- Контроль всех операций через систему управления
Электрическая схема
Основные элементы электрической части:
- Главный выключатель питания
- Контакторы и реле управления
- Двигатели передвижения и подъема
- Система торможения
- Защитные устройства (ограничители, датчики)
Рекомендации по чтению схем
Для эффективного изучения схем кран-балок:
- Начинайте с общего вида конструкции
- Обращайте внимание на условные обозначения
- Изучайте отдельно механическую и электрическую части
- Сверяйтесь с паспортом оборудования
- При сложностях консультируйтесь со специалистами
